4230 Friar Tuck Drive – $305,000 – MLS# 70012713
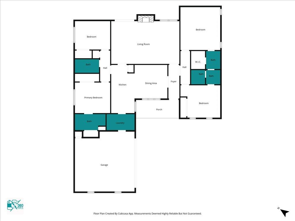
Beautiful 4 bedroom, 3 bath home in the desirable Kingwood subdivision in NE Nacogdoches! This well-designed home features a formal dining room, a spacious living area with a cozy fireplace, and a functional kitchen perfect for everyday living. Enjoy a private backyard with no rear neighbors ideal for relaxing or hosting gatherings. The fenced yard includes two large gates for easy drive-through access, perfect for trailers or additional storage. With a roof replaced just two years ago and a prime location just minutes from Nacogdoches High School, this home checks all the boxes for comfort, convenience, and lifestyle.
